Cách sử dụng máy rửa bát
Trong bài viết dưới đây chúng tôi sẽ hướng dẫn các bạn cách sử dụng máy rửa bát đúng cách tăng tuổi thọ tránh được những hư hỏng thường gặp trong quá trình sử dụng để các bạn tham khảo nhé
1. Cách sử dụng Máy rửa bát cơ bản
Cấu tạo của máy rửa bát:
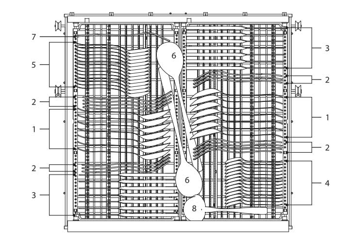
Để nắm được cách sử dụng máy rửa bát đúng cách, an toàn và hiệu quả, các bạn cần phải hiểu được tổng quan về cấu tạo hoạt động của một chiếc
máy rửa bát gia đình
Mỗi dòng máy rửa bát khác nhau được sản xuất với nhiều kích thước và số giàn rửa khác nhau, nhưng nhìn chung cấu tạo bên trong của máy rửa bát sẽ như hình minh họa sau:
Tổng quan về cấu tạo máy rửa bát
Các bước sử dụng máy rửa bát:
Để vận hành một quy trình rửa, các bạn phải thực hiện qua các bước sau:
-
Bước 1: Đổ muối làm mềm nước vào hộp chứa
-
Bước 2: Loại bỏ thức ăn thừa trên bát đĩa
-
Bước 3: Xếp bát vào giá của máy rửa bát
-
Bước 3: Đổ viên rửa, và nước trợ xả vào đúng vị trí và đúng lượng.
-
Bước 4: Chọn chương trình rửa phù hợp và khởi động
Các bước sử dụng máy rửa bát
2. Cách sử dụng máy rửa bát với chất tẩy rửa
Để máy rửa bát có thể hoạt động tốt, bền và tuổi thọ máy được lâu thì không thể thiếu các sản phẩm chuyên dụng dành cho máy rửa bát. Có 3 loại chất tẩy rửa chính đó là: muối làm mềm nước, nước trợ xả, viên rửa hoặc bột rửa
Dưới đây là hướng dẫn chi tiết cách sử dụng các loại chất tẩy rửa giúp máy rửa bát tối ưu hóa khả năng làm sạch, sấy khô diệt khuẩn khử mùi hôi cho các loại bát đĩa, xoong nồi và vật dụng của chúng ta.
Cách đổ muối làm mềm nước vào ngăn chứa khi sử dụng máy rửa bát
Với lần đầu tiên sử dụng máy rửa bát, chúng ta cần đổ muối rửa bát vào hộp chứa. Muối rửa bát là 1 loại muối chuyên dụng, rất quan trọng, có công dụng làm mềm nước và loại bỏ cặn, tạp chất trong nước, giúp cho bát đũa, ly cốc trở nên sạch, bóng hơn và không bị bám cặn canxi.
Để đổ muối đúng cách vào máy rửa bát, các bạn thao tác như sau:
-
Di chuyển ngăn để bát phía dưới ra, sau đó tháo nắp hộp chứa muối
-
Đặt phễu vào hộp chứa, sau đó đổ 1,5kg muối vào trong hộp chứa.
-
Đổ nước vào hộp chứa muối tới vạch tối đa, thông thường sẽ có một lượng nước nhỏ tràn ra khỏi hộp chứa.
-
Sau đó vặn chặt nắp hộp chứa muối
-
Đèn báo muối sẽ tắt khi hộp chứa muối được đổ đầy.
-
Cho máy hoạt động chương trình rửa nhanh ngay khi hoàn thành việc đổ đầy muối. Việc này chúng ta chỉ cần làm khi lần đầu tiên sử dụng máy. Điều này sẽ giúp muối tránh làm hỏng hệ thống lọc, bơm và một số bộ phận quan trọng khác của máy.
Lưu ý:
-
Chỉ sử dụng loại muối chuyên dụng dành cho máy rửa bát để đảm bảo máy đạt độ bền và hiệu quả tối đa nhất.
-
Chỉ độ lượng muối vừa đủ vào hộp chưa để tránh trường hợp muối thừa đọng lại làm hỏng hoặc ăn mòn thiết bị
-
Mỗi lần đổ muối có thể dụng trong thời gian khá lâu. Khi lượng muối trong khay hết thì màn hình Led sẽ hiển thị cảnh báo để chúng ta bổ sung thêm. (Lưu ý, đèn cảnh báo có thể vẫn sáng ngay cả khi hộp chứa đã đổ đầy muối, điều này tùy thuộc vào mức độ hòa tan của muối)
Cách đổ nước trợ xả vào hộp chứa máy rửa bát
Nước trợ xả có tác dụng làm khô và tăng độ sáng bóng cho các vật dụng.
-
Mở hộp chứa nước trợ xả
-
Đổ nước trợ xả vào hộp chứa, tránh bị tràn ra ngoài
-
Đóng nắp cẩn thận

Lưu ý: Khi chúng ta rửa xong mà thấy bát đĩa của mình không được khô như bình thường thì có nghĩa là ngăn đựng nước làm bóng đang bị hết mà chúng ta không để ý. Vì vậy, các bạn luôn kiểm tra ngăn đựng nước làm bóng khi có đèn cảnh báo nhé
Cách cho viên rửa bát vào hộp chứa máy rửa bát
Bên cạnh ngăn đựng nước trợ xả là ngăn chứa nước tẩy rửa. Bạn có thể sử dụng dạng viên tẩy rửa hoặc bột tẩy rửa
-
Mở nắp hộp chứa viên rửa
-
Cho viên rửa vào hộp chứa
-
Đóng nắp hộp chứa viên rửa

Mẹo:
-
Hiện nay, có một số chất tẩy rửa thông dụng như là somat, finish đều là những thương hiệu được khuyên dùng cho máy rửa bát
-
Theo kinh nghiệm thì từ 3 -6 tháng, bạn mới cần phải bổ sung thêm muối hoặc nước làm bóng khi màn hình hiển thị đèn cảnh báo. Còn trong quá trình sử dụng hàng ngày, bạn chỉ cần sử dụng viên rửa hoặc bột rửa.
3. Hướng dẫn Cách xếp vật dụng vào máy rửa bát
1. Gạt thức ăn trước khi đặt chén, bát và các vật dụng vào máy rửa bát
-
Loại bỏ các thực phẩm thừa còn sót lại trên vật dụng giúp máy hoạt động hiệu quả và tiết kiệm hơn
-
Không cần xả vòi trực tiếp để làm hết thực phẩm dư thừa
-
Làm mềm phần cháy cạnh trong nồi, chảo trước khi bỏ vào máy
2. Mẹo sử dụng ngăn để chén,bát ,đĩa khi sử dụng máy rửa bát
Điều chỉnh ngăn chén, bát bên trên trong máy rửa bát
Có thể điều chỉnh độ cao của ngăn chén, bát bên trên để tạo thêm không gian cho các vật dụng lớn cho ngăn bên trên hoặc bên dưới.
Để điều chỉnh độ cao của ngăn chứa, hãy làm theo các bước sau:
Kiểu 1:

Kiểu 2:

Gập giá để cốc chén trong máy rửa bát
Bạn có thể gập giá để ly, chén ( như hình vẽ) để tạo độ rộng cho ngăn chứa.

Gấp thanh đỡ trong ngăn chứa máy rửa bát
Các thanh đỡ chén, bát này có thể được gập xuống để tạo thêm không gian cho các vật dụng khác.

3. Cách sắp xếp bát đĩa vào ngăn chứa máy rửa bát
Để đạt hiệu quả rửa tốt nhất, hãy sắp xếp vật dụng theo tiêu chuẩn sắp xếp dưới đây:
Cách sắp xếp bát đĩa vào ngăn trên trong máy rửa bát
Ngăn trên được thiết kế để xếp chén bát nhẹ, mỏng, dễ vỡ hơn như ly, cốc, bát đĩa ( miễn là không quá dơ, bẩn). Xếp bát đĩa, dụng cụ nấu ăn để chúng không bị dịch chuyển khi phun nước
Sắp xếp theo thứ tự:
-
Cốc, chén
-
Đĩa
-
Cốc thủy tinh
-
Chén, bát nhỏ
-
Chén, bát cỡ vừa
-
Chén, bát cỡ lớn
Cách sắp xếp bát đĩa vào ngăn dưới máy rửa bát
Nên đặt những vật dụng lớn và khó làm sạch ở giá dưới như: nồi, chảo, nắp, bát đĩa lớn,.. như trong hình bên phải. Tốt nhất là xếp đĩa và vung, nắp, nồi ở các cạnh giá đỡ để tránh chạm vào vòng xoay của tay phun nước bên trên
Sắp xếp theo thứ tự:
-
Đĩa ăn bánh
-
Đĩa to
-
Đĩa súp
-
Đĩa cỡ lớn
Ngăn để thìa, dĩa, dao, đũa trong máy rửa bát
Sắp xếp như hình:

Đặt chén bát và các vật dụng vào máy rửa bát theo hướng dẫn sau:
-
Các vật dụng như cốc, chén, ly, nồi chảo ,... xếp úp ngược xuống
-
Các vật dụng cong hoặc lõm nên được xếp nghiêng để không bị đọng nước.
-
Đảm bảo vật dụng được xếp đúng cách, đúng vị trí, không bị thay đổi vị trí trong khi rửa.
-
Không để các vật dụng gây cản trở hoặc làm vướng vòi phun nước trong khi máy đang hoạt động.
-
Không sắp xếp bát đĩa và các vật dụng dao kéo chồng lên nhau
-
Để tránh bị vỡ, đồ vật bằng thủy tinh không xếp chạm vào nhau
-
Các vật dụng nhỏ, nhẹ như ly, cốc, vv... để ở ngăn trên.
-
Không bao giờ để các vật dụng dài ra khỏi kệ
-
Không để con dao dài sắc đặt thẳng đứng sẽ rất nguy hiểm
-
Các vật dụng sắc nhọn phải được đặt theo chiều ngang ở ngăn trên
-
Đừng bỏ quá nhiều chén, bát, vật dụng khiến máy bị quá tải. Việc này rất quan trọng để máy chạy tốt và tiêu thụ điện năng hợp lý cũng như rửa sạch chén bát
-
Không nên cho vào máy các vật dụng quá nhỏ vì chúng có thể dễ dàng bị rơi khỏi ngăn chứa máy rửa bát
4. Cách sử dụng máy rửa bát với bảng điều khiển

Cấu tạo bảng điểu khiển máy rửa bát
Bảng điều khiển là khu vực hiển thị:
-
Các nút chức năng ( các phím từ số 1 đến 9 trên hình)
-
Các chương trình rửa và các chức năng rửa: khu vực hiển thị đèn led số 10 trên hình
-
Các đèn cảnh báo: khu vực hiển thị đèn led số 11 trên hình
Hướng dẫn sử dụng các nút chức năng của máy rửa bát
Chúng ta cùng tìm hiểu công dụng của các nút chức năng từ 1 đến 9 này nhé
-
Phím nguồn: Nhấn phím này để khởi động máy
-
Phím chọn chương trình: Nhấn phím này để chọn chương trình rửa phù hợp
-
Phím chọn chương trình: Nhấn phím này để chọn chương trình rửa phù hợp
-
Phím chọn tay phun trên, tay phun dưới: Nhấn phím này để lựa chọn rửa ngăn trên hoặc ngăn dưới.
-
Phím khóa trẻ em: Phím này cho phép bạn khóa các phim khác trên bảng điều khiển ( ngoại trừ nút nguồn). Nhấn và giữ cùng lúc 2 phím trong 3 giây để khóa hoặc mở.
-
Nút hẹn giờ giảm: Nhấn phím này để giảm thời gian hẹn giờ
-
Nút hẹn giờ tăng: Nhấn phím này để tăng thời gian hẹn giờ
Các chương trình rửa của máy rửa bát
Các chức năng rửa của máy rửa bát
Hiển thị đèn cảnh báo của máy rửa bát
5. Cách sử dụng máy rửa bát với các chương trình rửa thông dụng
Các máy rửa bát có nhiều chương trình rửa khác nhau, phù hợp với độ bẩn của bát đũa, xoong nồi trong nhiều trường hợp khác nhau. Đảm bảo khả năng sạch và diệt khuẩn hoàn toàn nhưng vẫn tiết kiệm điện năng một cách tối ưu.
Bảng chu trình rửa của máy rửa bát
Dưới đây là bảng các chương trình rửa và lượng nước tiêu thụ phù hợp nhất với từng mức độ bẩn (dơ) của bát đĩa. Ngoài ra bảng cũng hiển thị các thông tin khác của mỗi chương trình rửa.

Lưu ý
-
Chương trình này là rửa theo tiêu chuẩn EN 50242
-
Chương trình rửa thực tế có thể khác với chương trình này do nó còn phụ thuộc vào điều kiện sử dụng chén, bát của từng vùng miền.
Thay đổi chương trình rửa của máy rửa bát
Bạn chỉ có thể thay đổi chương trình rửa khi nó đã chạy được 1 thời gian ngắn, lúc này có thể viên rửa/chất rửa có lẽ đã bật ra khỏi ngăn chứa. Trong trường hợp này bạn phải cho lại viên rửa/chất rửa bát vào trong hộp chứa và thiết lập lại theo hướng dẫn bên dưới:
-
Nhấn nút Start/Pause để tạm dừng
-
Nhấn nút program "^" trong hơn 3 giây, chương trình sẽ bị hủy
-
Nhấn lại nút program " ^" hoặc " v " 1 lần nữa để chọn chương trình mong muốn
-
Nhấn nút start/pause, sau 10 giây máy sẽ khởi động.
Bỏ thêm vật dụng vào rửa
Những vật dụng bị bỏ quên có thể cho thêm vào bất cứ lúc nào chỉ cần viên/chất rửa bát chưa bật ra khỏi ngăn chứa. Hãy làm theo hướng dẫn sau:
-
Nhấn nút start/Pause để tạm dừng.
-
Đợi 5 giây rồi mở cửa. (Rất nguy hiểm nếu mở máy rửa bát đang hoạt động vì hơi nóng có thể làm bạn bị bỏng)
-
Bỏ thêm vật dụng vào
-
Đóng cửa lại
-
Nhấn nút Start/Pause, sau 10 giây máy sẽ khởi động.
Tự động mở cửa máy rửa bát
Với một số dòng máy rửa bát cao cấp, sau khi rửa xong, cửa máy sẽ tự động mở để đạt hiệu quả làm khô tốt hơn
Lưu ý:
-
Cửa máy rửa bát không được phép chặn hoặc khóa khi cài đặt chế độ mở tự động
-
Việc này có thể làm hỏng chức năng tự động mở cửa của máy
6. Các thông báo lỗi phổ biến khi sử dụng Máy rửa bát
Nếu có sự cố xảy ra, máy sẽ hiển thị mã số báo lỗi như sau:
|
Mã |
Giải thích |
Nguyên nhân |
|
E1 |
Thời gian cấp nước lâu hơn |
Vòi nước chưa mở, nguồn nước yếu hoặc áp lực nước thấp |
|
E3 |
Không đạt được đủ nhiệt độ |
Trục trặc ở bộ phận làm nóng |
|
E4 |
Tràn nước |
Bộ phận nào đó của máy bị rò nước |
|
E8 |
Van an toàn bị hỏng |
Van hỏng |
|
Ed |
Mất nguồn |
Bo mạch bị lỗi |
Cảnh báo:
-
Nếu máy rửa bát bị tràn nước, hãy ngắt nguồn cấp nước hoặc van cấp nước, sau đó gọi dịch vụ bảo hành
-
Hãy lau thật khô, sạch phần nước bị rò rỉ trước khi khởi động lại máy
7. Lưu ý khi sử dụng Máy rửa bát
Trong quá trình sử dụng máy rửa bát bạn cũng cần lưu ý một số điểm sau đây để máy có thể hoạt động tốt hơn đó là:
-
Luôn để ý hệ thống đèn cảnh báo tình trạng hóa chất để kiểm tra các hóa chất tẩy rửa trong khay trước khi khởi động chạy chương trình rửa của máy
-
Thường xuyên vệ sinh máy rửa bát sạch sẽ để máy hoạt động hiệu quả và bảo vệ, nâng cao tuổi thọ cho thiết bị
-
Không để các vật dụng va chạm hoặc chạm vào hộp chứa viên rửa, trong trường hợp vật dụng chạm vào, hộp chứa viên rửa không thể mở ra trong quá trình rửa. Điều này sẽ gây cho vật dụng bị bẩn sau khi kết thúc chu trình rửa
-
Đối với những vật dụng chất liệu đặc biệt, chọn chương trình rửa với nhiệt độ thấp hơn bình thường
-
Để tránh nguy hiểm và hỏng hóc, không lấy các vật dụng thủy tinh và dao kéo ra khỏi máy trong vòng 15 phút sau khi chương trình rửa kết thúc.
-
Mua chén bát hoặc các vật dụng có thể rửa bằng máy rửa bát.
-
Không cho những vật dụng không phù hợp vào máy rửa bát
-
Các vật dụng bằng gỗ hoặc sừng
-
Các vật dụng bằng nhựa không chịu nhiệt
-
Các vật dụng không chịu nhiệt
-
Các vật dụng bằng đồng, thiếc, các vật dụng bị rỉ sét
-
Các vật dụng làm từ sợi tổng hợp

>>> Xem thêm: Những vật dụng chớ dại cho vào máy rửa bát kẻo hối không kịp
8. Tổng kết:
Hy vọng những thông tin trên đây sẽ giúp quá trình sử dụng máy rửa bát của gia đình bạn thêm phần dễ dàng và hiệu quả hơn. Để tham khảo thêm nhiều thông tin và kinh nghiệm hữu ích khác về cách sử dụng máy rửa bát, các bạn có thể gửi yêu cầu cho Kocher trên website hoặc fanpage, hoặc gọi điện đến số hotline hỗ trợ của chúng tôi để được tư vấn tận tâm nhất.